Cristina Di Lorenzo, Valentina Vegas.
Maison Citrohan, Stuttgart, Alemania.
Construída entre 1926 y 1927 como parte de un proyecto doble en Stuttgart – Alemania, fue obra de Le Corbusier. Está dividida en cuatro plantas, de las cuales la tercera sólo se extiende hasta la mitad, creando una doble altura entre la segunda y la tercera planta.
ANÁLISIS
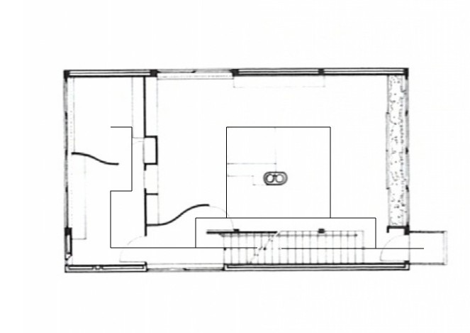
La geometría de la casa, vista en planta, se desarrolla a partir de 2 rectángulos de igual tamaño. Estos dos rectángulos se descomponen en una retícula demostrada como una serie de cuadrados más pequeños pudiendo ser vistos como dos y medio en sentido vertical y cuatro en sentido horizontal, o, cinco en sentido vertical y ocho en horizontal. Así, se determina la ubicación y tamaño de los muros, los espacios que definen y las relaciones entre estos.
La circulación es orientada por los focos, los cuales vienen siendo las entradas de luz (el balcón que sobre sale de la segunda planta y los ventanales), las columnas y paredes curvas dispuestas en toda la edificación.

Los espacios están definidos por los alcances de los elementos estructurales, como las paredes curvas y la doble altura entre la segunda y la tercera planta, además de la terraza ubicada en la planta superior.
(Primera jerarquía: Morado.
Segunda jerarquía y transición: Azul.
Tercera jerarquía: Turquesa.)




No hay comentarios:
Publicar un comentario